Floorplans
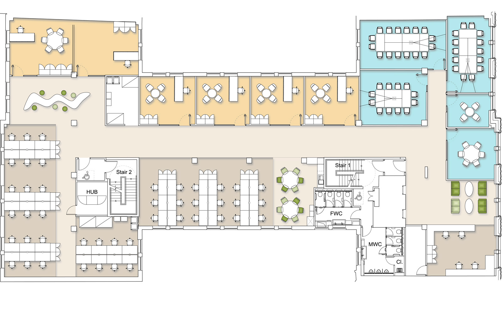
High density
- High density
- Professional
- Legal
- Floorspace744 SQ M, 8,008 SQ FT96 Workstations5 x Meeting Rooms2 x Private Offices1 per 8m2
- Floorspace744 SQ M, 8,008 SQ FT78 Workstations5 x Meeting Rooms2 x Private Offices1 per 10m2
- Floorspace744 SQ M, 8,008 SQ FT52 Workstations5 x Meeting Rooms6 x Private Offices1 per 14m2


